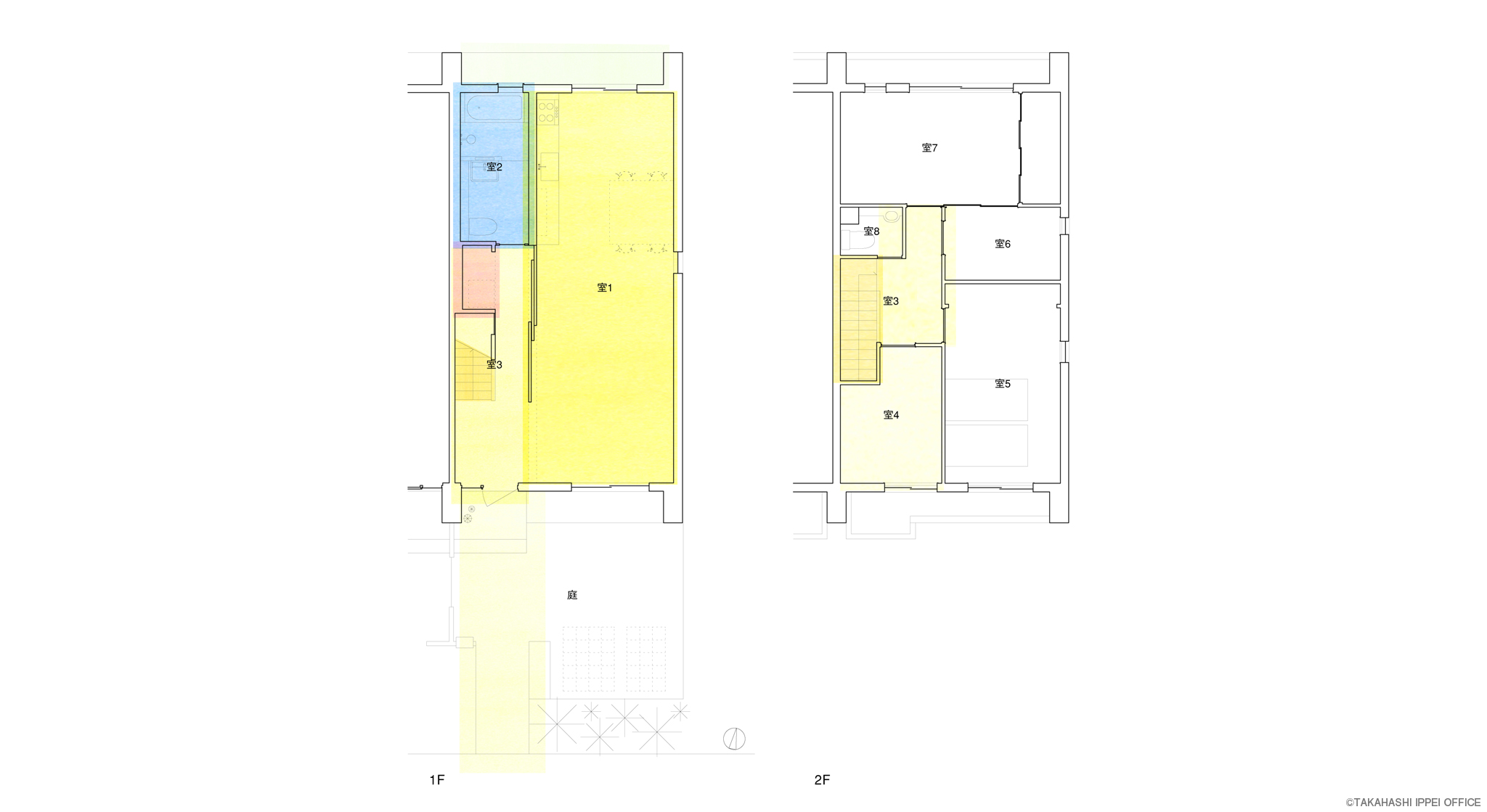
Nagase House
*Tokyo Japan, 2021-23 / private residence (a renovated condominium), 102m2
_
please wait
_
please wait
_
please wait
_
please wait
_
please wait
_
please wait
_
please wait
_
please wait
_
please wait
_

please wait
_
please wait
_

PRESS
JUTAKUTOKUSHU 2024.6, Shinkenchiku-sha, Tokyo*
*Japanese only
_

TAKAHASHIIPPEIOFFICE