|
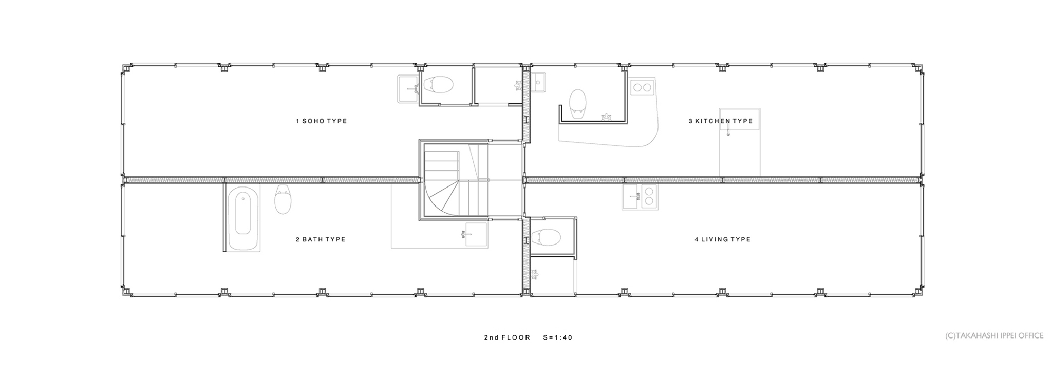
Apartment Building of 12 Rooms
*Tokyo JAPAN, 2010-11 / apartment, 300m2, steel structure
_

_

_

_

_

bathroom type housing
_
AWARDS
SD review (2012, Kajima Publishing)
_
PRESS
SD 2012 for "Apartment Building of 12 Rooms", Kajima Publishing, Tokyo*
*Japanese only
|